Verkocht:Puttenstein 45, 3328 BK Dordrecht - Foto
Verkocht
+35

Puttenstein 45 3328 BK Dordrecht

  • Appartement
  • 4 kamers
  • 2 slaapkamers
  • 1 badkamers
  • Bouwjaar 1978
  • 100 m² gebruiksoppervlakte
  • A Energielabel A

Beschrijving

Gerenoveerd appartement met ruim balkon, parkeerplaats en 2 bergingen gelegen in Dordrecht

Dit ruime gerenoveerde appartement gelegen aan Puttenstein 45 uit 1978, biedt een ideale woonsituatie voor starters en doorstromers.

Geniet van de buitenlucht op het balkon dat een prachtig uitzicht biedt op de natuurlijke omgeving. Daarnaast beschikt het appartement over een parkeerplaats en maar liefst twee bergingen, waardoor u voldoende ruimte heeft voor al uw spullen.

Dit appartement is gelegen in de bruisende wijk Sterrenburg, met alle benodigde voorzieningen binnen handbereik. Van supermarkten tot scholen en recreatiemogelijkheden, u vindt alles in de nabije omgeving.

Wacht niet langer en grijp deze unieke kans om in dit prachtige appartement te wonen. Neem contact met ons op voor meer informatie of om een bezichtiging in te plannen. Ervaar zelf het comfort, de ruimte en het uitzicht van deze fantastische woning in Dordrecht.

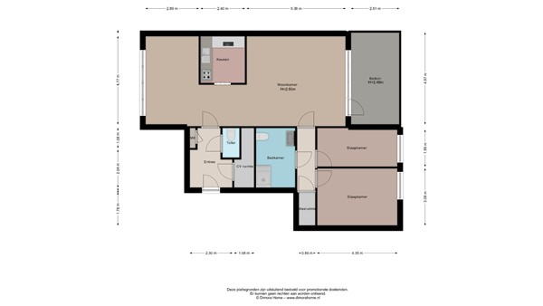
Indeling

Bij binnenkomst via de nette entree valt direct de moderne afwerking op. De ruime hal geeft toegang tot meterkast, stookruimte en ruim toilet.

De royale woonkamer vormt het hart van de woning. Dankzij de brede raampartijen geniet u hier van veel natuurlijk licht. De nieuwe keuken, strak vormgegeven en voorzien van diverse inbouwapparatuur, maakt dit tot een ideale ruimte voor zowel ontspanning als gezellig dineren.

Vanuit de woonkamer is er directe toegang tot het ruime balkon, een heerlijke plek om buiten te zitten en te genieten van de rustige omgeving.

De woning beschikt over twee goed bemeten slaapkamers met een prettige lichtinval dankzij de grote ramen. Beide kamers bieden voldoende ruimte voor een tweepersoonsbed en kledingkasten.

Extra opbergruimte vindt u in de aparte bergruimte bij de 2 slaapkamers. De stijlvolle badkamer is uitgevoerd in hedendaagse kleurstellingen en beschikt over een douche, wastafelmeubel en aansluiting voor wasapparatuur.

Bijzonderheden

Kadastraal bekend: het appartementsrecht, rechtgevende op het uitsluitend gebruik van de vierkamerwoning, eigen parkeerplaats, berging en verder toebehoren, plaatselijk bekend Puttenstein 45 te Dordrecht, kadastraal bekend gemeente Dordrecht sectie Q nummer 3114 appartementsindex 14;

• Eigen grond
• Bouwjaar: 1978
• Woonoppervlak: circa 100m² (inhoud: 318m³)
• De VVE bijdragen 206 euro maandelijkse bijdrage
• Verwarming d.m.v. CV-ketel 2012
• Kunststof kozijnen met HR++ glas
• Energielabel A
• Oplevering in overleg, snel is mogelijk.

• In de koopovereenkomst zullen we een niet zelf-bewoningsclausule en ouderdomsclausule toevoegen.

• Ondanks dat grote zorgvuldigheid is betracht bij het samenstellen van de verkoopinformatie wordt voor de onjuistheid van de vermelde gegevens door de eigenaar noch door de verkopend makelaar enige aansprakelijkheid aanvaard.

• Rechtsgeldige koopovereenkomst pas ná ondertekening: Een mondelinge overeenstemming tussen de particuliere verkoper en de particuliere koper is niet rechtsgeldig. Met andere woorden: er is (nog) geen koop. Er is pas sprake van een rechtsgeldige koop als de particuliere verkoper en de particuliere koper de koopovereenkomst hebben ondertekend. Dit vloeit voort uit artikel 7:2 Burgerlijk Wetboek . Een bevestiging van de mondelinge overeenstemming per e-mail of een toegestuurd concept van de koopovereenkomst wordt overigens niet gezien als een ‘ondertekende koopovereenkomst’.

Kaart

Kenmerken

Overdracht

Referentienummer
00188
Vraagprijs
€ 309.000,- k.k.
Servicekosten
€ 206,-
Status
Verkocht
Aanvaarding
In overleg
Aangeboden sinds
Vrijdag 19 september 2025
Laatste wijziging
Woensdag 17 december 2025

Bouw

Type object
Appartement, galerijflat
Woonlaag
1e woonlaag
Soort bouw
Bestaande bouw
Bouwperiode
1978
Dakbedekking
Bitumen
Type dak
Platdak
Keurmerken
Energie prestatie advies
Isolatievormen
Grotendeels dubbel glas
HR-glas

Oppervlaktes en inhoud

Woonoppervlakte
100 m²
Inhoud
318 m³
Oppervlakte externe bergruimte
8 m²
Oppervlakte gebouwgebonden buitenruimte
13 m²

Indeling

Aantal bouwlagen
1
Aantal kamers
4 (waarvan 2 slaapkamers)
Aantal badkamers
1 (en 1 apart toilet)

Energieverbruik

Energielabel
A

CV ketel

CV ketel
Intergas
Warmtebron
Gas
Bouwjaar
2012
Combiketel
Ja
Eigendom
Eigendom

Uitrusting

Warm water
CV-ketel
Verwarmingssysteem
Centrale verwarming
Badkamervoorzieningen
Douche
Toilet
Wastafelmeubel
Heeft kabel-tv
Ja
Telefoonaansluiting aanwezig
Ja
Beschikt over een internetverbinding
Ja
Heeft schuur/berging
Ja

Vereniging van Eigenaren

Ingeschreven bij de KvK
Ja
Jaarlijkse vergadering
Ja
Periodieke bijdrage
Ja
Reservefonds
Ja
Meer jaren onderhoudsplan
Ja
Onderhoudsverwachting
Ja
Opstal verzekering
Ja

Kadastrale gegevens

Kadastrale aanduiding
Dordrecht Q 3114
Omvang
Appartementsrecht of complex
Eigendomsituatie
Eigen grond
Indexnummer
14