Verkocht onder voorbehoud:Burgemeester de Zeeuwstraat 330, 2981 AJ Ridderkerk - Foto
Verkocht onder voorbehoud
+36

Burgemeester de Zeeuwstraat 330 2981 AJ Ridderkerk € 300.000,- k.k.

  • Appartement
  • 4 kamers
  • 2 slaapkamers
  • Bouwjaar 1963
  • 74 m² gebruiksoppervlakte
  • D Energielabel D

Beschrijving

Dit is het appartement waar je wilt wonen! Prachtige keuken en badkamer, ruime woonkamer, twee slaapkamers, werkkamer, twee balkons en een vrij zicht aan de voorzijde! Het appartement is gelegen op de eerste verdieping van een goed onderhouden appartementencomplex.

De ligging is centraal ten opzichte van het centrum van Ridderkerk, scholen, bushaltes, en andere openbare voorzieningen.

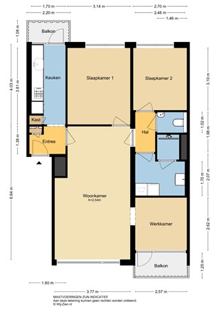
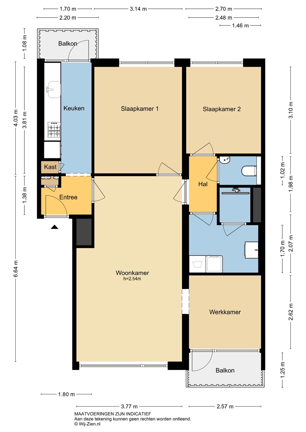
Indeling:

Begane grond:

Afgesloten portiek. Toegang tot de bergingen en de woonverdiepingen.

1e verdieping:
Entree van het appartement. Hal welke toegang geeft tot de keuken en de woonkamer. Moderne keuken welke in 2020 is geplaatst en voorzien is van een gasfornuis, afzuigkap, combi-oven, vaatwasser (vernieuwd in 2024), koelkast en vriezer (vernieuwd in 2024). De keuken geeft toegang tot het balkon aan de achterzijde. De royale woonkamer kenmerkt zich door de goede lichtinval middels de grote raampartij. Vanuit de woonkamer is er een open verbinding met de werkkamer. Deze kamer geeft toegang tot het balkon aan de voorzijde. Tevens is vanuit de woonkamer de grote slaapkamer bereikbaar en de tweede hal. De tweede hal geeft toegang tot de andere slaapkamer aan de achterzijde, de toiletruimte en de moderne badkamer. De badkamer is voorzien van een douche, wastafelmeubel en een aansluiting voor de wasapparatuur.

Bijzonderheden:
- Eigen berging in de onderbouw
- Twee balkons
- Kunststof kozijnen met dubbel glas
- Actieve VvE, bijdrage per maand is € 146,--

Kaart

Kenmerken

Overdracht

Vraagprijs
€ 300.000,- k.k.
Servicekosten
€ 146,-
Status
Verkocht onder voorbehoud
Aanvaarding
In overleg
Aangeboden sinds
Maandag 2 maart 2026
Laatste wijziging
Woensdag 25 maart 2026

Bouw

Type object
Appartement, portiekflat
Woonlaag
1e woonlaag
Soort bouw
Bestaande bouw
Bouwjaar
1963
Type dak
Platdak
Isolatievormen
Dubbel glas

Oppervlaktes en inhoud

Woonoppervlakte
74 m²
Inhoud
234 m³
Oppervlakte externe bergruimte
7 m²
Oppervlakte gebouwgebonden buitenruimte
6 m²

Indeling

Aantal bouwlagen
1
Aantal kamers
4 (waarvan 2 slaapkamers)

Locatie

Ligging
Aan drukke weg
In woonwijk
Vrij uitzicht

Energieverbruik

Energielabel
D

CV ketel

CV ketel
Intergas
Warmtebron
Gas
Bouwjaar
2019
Combiketel
Ja
Eigendom
Eigendom

Uitrusting

Warm water
CV-ketel
Verwarmingssysteem
Centrale verwarming
Badkamervoorzieningen
Douche
Wastafelmeubel
Heeft een balkon
Ja
Heeft schuur/berging
Ja
Heeft zonwering
Ja
Heeft ventilatie
Ja

Vereniging van Eigenaren

Ingeschreven bij de KvK
Ja
Jaarlijkse vergadering
Ja
Periodieke bijdrage
Ja
Reservefonds
Ja
Onderhoudsverwachting
Ja
Opstal verzekering
Ja

Kadastrale gegevens

Kadastrale aanduiding
Ridderkerk H 5041
Omvang
Appartementsrecht of complex
Eigendomsituatie
Eigen grond
Indexnummer
5

Media

Video

Plattegronden