Nieuw in verkoop:Van Anrooystraat 151, 2983 VG Ridderkerk - Foto
Nieuw in verkoop
+33

Van Anrooystraat 151 2983 VG Ridderkerk € 269.000,- k.k.

  • Appartement
  • 4 kamers
  • 3 slaapkamers
  • Bouwjaar 1965
  • 76 m² gebruiksoppervlakte
  • G Energielabel G

Beschrijving

Zoek je een woning die je geheel naar eigen stijl kan renoveren?

Dan is dit ruime 4-kamer appartement op de eerste woonlaag een unieke kans voor jou! Mocht je nu nog niet het budget hebben voor een renovatie dan kan je er ook zeker voor kiezen om de woning in de huidige staat te gebruiken. De keuken en badkamer zijn niet nieuw maar zeker nog bruikbaar!

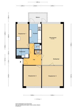
Het appartement heeft drie ruime slaapkamers, een woonkamer, badkamer, separate toilet, keuken en een zonnig balkon op het Zuidwesten!

Het appartement is gelegen op een centrale plek in Slikkerveer. He winkelcentrum “Dillenburgplein” is op loopafstand van de woning evenals een bushalte en (basis)scholen.

Indeling:

Begane grond:
Afgesloten portiek. Toegang tot de bergingen en trap naar de woonverdiepingen.

1e verdieping:
Entree van het appartement. Hal welke toegang geeft tot de woonkamer, keuken, badkamer, toilet en de drie slaapkamers. Vanuit de keuken is er toegang tot het balkon aan de achterzijde.

Bijzonderheden:
- Eigen berging in de onderbouw
- Verwarming middels blokverwarming
- Warmwater middels huur boiler
- Voorschot voor de stookkosten is € 80,-- per maand

Kaart

Kenmerken

Overdracht

Vraagprijs
€ 269.000,- k.k.
Servicekosten
€ 190,22
Status
Nieuw in verkoop
Aanvaarding
In overleg
Aangeboden sinds
Vrijdag 17 april 2026

Bouw

Type object
Appartement, portiekflat
Woonlaag
1e woonlaag
Soort bouw
Bestaande bouw
Bouwjaar
1965
Type dak
Platdak
Isolatievormen
Gedeeltelijk dubbel glas

Oppervlaktes en inhoud

Woonoppervlakte
76 m²
Inhoud
246 m³
Oppervlakte externe bergruimte
7 m²
Oppervlakte gebouwgebonden buitenruimte
5 m²

Indeling

Aantal bouwlagen
1
Aantal kamers
4 (waarvan 3 slaapkamers)

Locatie

Ligging
Aan rustige weg
In woonwijk

Energieverbruik

Energielabel
G

Uitrusting

Warm water
Elektrische boiler
Verwarmingssysteem
Blokverwarming
Badkamervoorzieningen
Douche
Wastafel
Heeft een balkon
Ja
Heeft schuur/berging
Ja

Vereniging van Eigenaren

Ingeschreven bij de KvK
Ja
Jaarlijkse vergadering
Ja
Periodieke bijdrage
Ja
Reservefonds
Ja
Onderhoudsverwachting
Ja
Opstal verzekering
Ja

Kadastrale gegevens

Kadastrale aanduiding
Ridderkerk A 6660
Omvang
Appartementsrecht of complex
Eigendomsituatie
Eigen grond
Indexnummer
6

Media

Virtuele tour

Plattegronden

Brochure(s) en overige bijlagen

Brochure Download
brochure Download