Onder optie:Van Lennepstraat 131, 2985 TL Ridderkerk - Foto
Onder optie
+30

Van Lennepstraat 131 2985 TL Ridderkerk € 299.500,- k.k.

  • Appartement
  • 4 kamers
  • 3 slaapkamers
  • Bouwjaar 1967
  • 77 m² gebruiksoppervlakte
  • C Energielabel C

Beschrijving

Op een fijne en centrale locatie nabij het Centrum van Ridderkerk is dit keurig onderhouden appartement gelegen. Het appartement is gelegen op de derde woonlaag van een goed onderhouden appartementencomplex.

Winkelplein 'Oost" is op loopafstand van de woning gelegen, het winkelcentrum "De Ridderhof" bevindt zich net als de basisscholen, bushaltes en andere openbare voorzieningen op korte afstand.

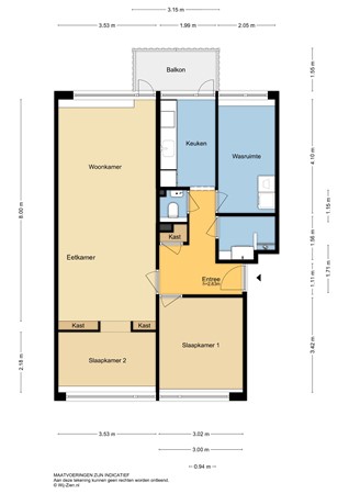
Indeling:

Begane grond:
Afgesloten portiek. Toegang tot de bergingen en trap naar de woonverdiepingen.

3e verdieping:
Entree van het appartement. Ruime hal welke toegang geeft tot vrijwel alle vertrekken in de woning. De woonkamer is voorzien van een airco die tevens verwarmt. Vanuit de woonkamer is er toegang tot het balkon en de slaapkamer aan de voorzijde. Het vrije uitzicht vanuit de woonkamer is een grote plus van dit appartement, je kijkt zo op de Vondellaan en veel groen. De grote slaapkamer bevindt zich aan de voorzijde en is vanuit de hal bereikbaar. Aan de achterzijde is de derde slaapkamer die nu als waskamer in gebruik is, in deze kamer bevindt zich de wasmachine aansluiting. De badkamer is modern en voorzien van een inloopdouche en meubel met wastafel. Separate toiletruimte. De keuken is gesitueerd aan de achterzijde en geeft toegang tot het balkon. De keuken is voorzien van een inbouw kookplaat, afzuigkap, combi-oven, koelkast en vaatwasser.

Bijzonderheden:
- Eigen berging in de onderbouw
- Verwarming middels blokverwarming
- Warm water middels elektrische doorstromer (eigendom)
- De bijdrage voor de VVE is € 150,-- per maand, voorschot voor de stookkosten is € 60,-- per maand

Kaart

Kenmerken

Overdracht

Vraagprijs
€ 299.500,- k.k.
Servicekosten
€ 150,-
Status
Onder optie
Aanvaarding
In overleg
Aangeboden sinds
Donderdag 22 januari 2026
Laatste wijziging
Woensdag 11 februari 2026

Bouw

Type object
Appartement, portiekflat
Soort bouw
Bestaande bouw
Bouwjaar
1967
Type dak
Platdak
Isolatievormen
Dubbel glas

Oppervlaktes en inhoud

Woonoppervlakte
77 m²
Inhoud
249 m³
Oppervlakte externe bergruimte
6 m²
Oppervlakte gebouwgebonden buitenruimte
5 m²

Indeling

Aantal bouwlagen
1
Aantal kamers
4 (waarvan 3 slaapkamers)

Locatie

Ligging
Aan rustige weg
In woonwijk

Energieverbruik

Energielabel
C

Uitrusting

Verwarmingssysteem
Blokverwarming
Badkamervoorzieningen
Douche
Wastafelmeubel
Heeft een balkon
Ja
Heeft schuur/berging
Ja

Vereniging van Eigenaren

Ingeschreven bij de KvK
Ja
Jaarlijkse vergadering
Ja
Periodieke bijdrage
Ja
Reservefonds
Ja
Onderhoudsverwachting
Ja
Opstal verzekering
Ja

Kadastrale gegevens

Kadastrale aanduiding
Ridderkerk H 3483
Omvang
Appartementsrecht of complex
Eigendomsituatie
Eigen grond

Media

Virtuele tour

Plattegronden

Brochure(s) en overige bijlagen