+24

Slotboomstraat 10A 3082 GP Rotterdam € 249.500,- k.k.

  • Appartement
  • 3 kamers
  • 2 slaapkamers
  • Bouwjaar 1900
  • 48 m² gebruiksoppervlakte
  • C Energielabel C

Beschrijving

Benedenwoning met ruime achtertuin en achterom! De woning is recent gerenoveerd en voorzien van een nieuwe vloeren, badkamer en toiletruimte. Deze 3-kamer woning is gelegen op een centrale locatie nabij voorzieningen.

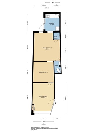
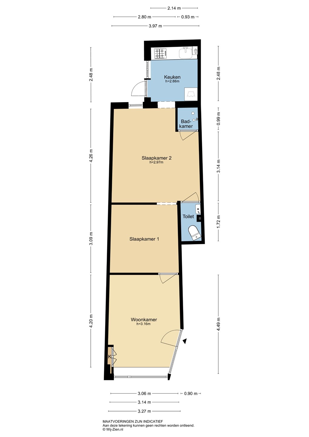
Indeling:

Begane grond:
Entree van de woning, binnenkomst in de kamer aan de voorzijde. Deze kamer geeft toegang tot de tussenkamer. Vanuit de tussenkamer is de kamer aan de achterzijde bereikbaar. Deze kamer geeft toegang tot de douche en de toiletruimte. Tevens geeft deze kamer toegang tot de keuken. De keuken geeft toegang tot de achtertuin.

De ruime achtertuin is gesitueerd op het Zuidoosten. De tuin is via de keuken bereikbaar. Er is een mogelijkheid om een achterom te realiseren.

Bijzonderheden:
- Het appartement is deels voorzien kunststof kozijnen met dubbel glas
- De VVE is in oprichting

Kaart

Kenmerken

Overdracht

Vraagprijs
€ 249.500,- k.k.
Aanvaarding
In overleg
Aangeboden sinds
Dinsdag 27 januari 2026
Laatste wijziging
Dinsdag 3 maart 2026

Bouw

Type object
Appartement, benedenwoning
Soort bouw
Bestaande bouw
Bouwjaar
1900
Type dak
Samengesteld

Oppervlaktes en inhoud

Woonoppervlakte
48 m²
Inhoud
210 m³

Indeling

Aantal bouwlagen
1
Aantal kamers
3 (waarvan 2 slaapkamers)

Locatie

Ligging
Aan rustige weg
In woonwijk

Tuin

Type
Achtertuin
Staat
Normaal

Energieverbruik

Energielabel
C

CV ketel

CV ketel
Intergas
Warmtebron
Gas
Bouwjaar
2021
Combiketel
Ja
Eigendom
Eigendom

Uitrusting

Warm water
CV-ketel
Verwarmingssysteem
Centrale verwarming
Badkamervoorzieningen
Douche
Tuin aanwezig
Ja

Vereniging van Eigenaren

Ingeschreven bij de KvK
Ja
Jaarlijkse vergadering
Ja

Kadastrale gegevens

Kadastrale aanduiding
Charlois H 4067
Omvang
Appartementsrecht of complex
Eigendomsituatie
Eigen grond

Media

Video

Plattegronden

Brochure(s) en overige bijlagen